Peppercorn

House

BUDGET | $1,250,000 - $1,500,000
TYPE |Heritage Alteration & Addition
STATUS | Construction Commencing Nov 2023

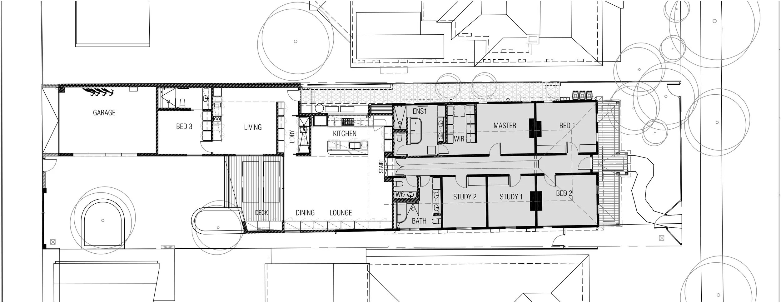
Our client approached us to help transform their ageing heritage fronted house into a multi-generational, environmentally sustainable comfortable home. We were charged with reinvigorating the space with contemporary overtones whilst maintaining a nod to the existing early century architecture.
Following collaboration with the client during the design stages we have now completed the required documentation and eagerly await construction to commence...watch this space.
Builder: Lovric Building Group
Previous
Previous

Laneway House

Next
Next

Clivedon House